Beschreibung
Diese moderne 3 Zimmer Wohnung bietet den idealen Wohnraum für Ihre kleine Familie.
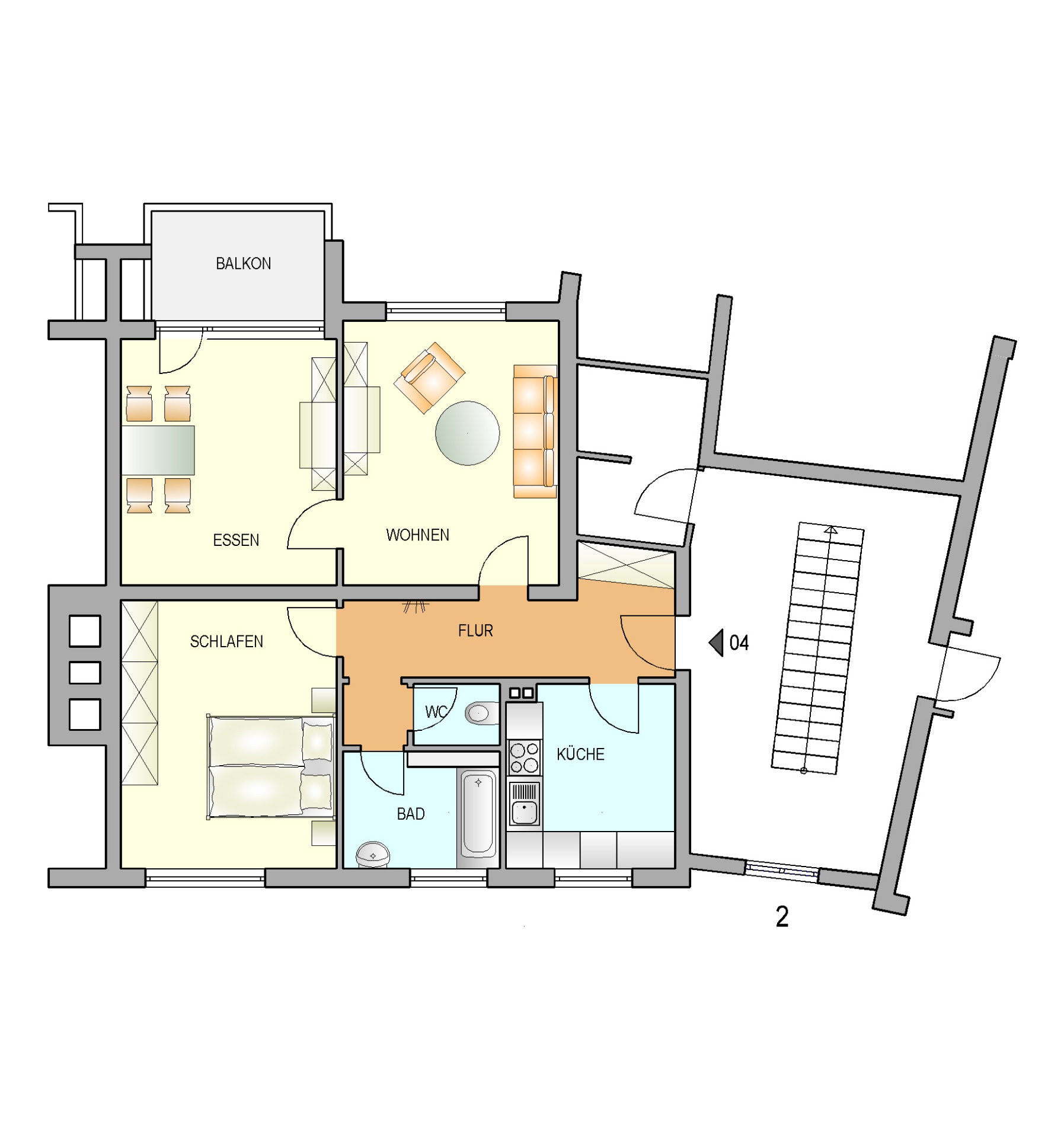
Beim Eintritt in die Wohnung gelangen Sie in den Flur. Links befindet sich die Küche und direkt gegenüber ein Abstellraum für zusätzlichen Stauraum. Neben an liegt das freundliche Tageslichtbad mit Dusche und gerade aus das großzügige Kinderzimmer.
Des Weiteren verfügt die Wohnung auf der rechten Seite über ein gemütliches Wohnzimmer mit Zugang zum Schlafzimmer. Der Balkon, welcher vom Schlafzimmer zugänglich ist, stellt einen perfekten Rückzugsort für Eltern da, um zwischen durch etwas Ruhe und Entspannung zu genießen.
Die moderne Küche kann vom Vormieter übernommen werden.
Zusätzlich wird Ihnen ein Kellerraum zur Verfügung gestellt.
Eine Anmietung ist ab dem 01.03.2026 möglich.
Ausstattung
- Küche
- Flur
- Badezimmer mit Dusche
- Abstellraum
- Balkon
- Rauchmelder
- Gas-Etagenheizung
- Keller
Lage
Die Metzer Str. gehört zum Stadtteil Hohenhagen und liegt sehr zentral in Remscheid. Einkaufsmöglichkeiten sowie eine Bushaltestelle sind in direkter Umgebung und fußläufig zu erreichen. Auch der Remscheider Hauptbahnhof ist nicht weit entfernt. Diverse Freizeitmöglichkeiten befinden sich in der näheren Umgebung und sorgen für ein angenehmes Wohnumfeld.
Die Remscheider Innenstadt, sowie die Autobahnauffahrt A1 in Richtung Köln und Dortmund sind innerhalb weniger Minuten mit dem Auto zu erreichen.
Sonstiges
Die Wohnung ist derzeit noch vermietet.
Eine Anmietung dieser Wohnung ist zum 01.03.2026 möglich!
Sollte Interesse an einer Besichtigung bestehen, bewerben Sie sich am besten über die Kontaktmöglichkeit. Im Anschluss bitten wir um vollständige Profilerstellung bei Immomio, um Ihre Bewerbung berücksichtigen zu können.
Wir freuen uns auf Ihre Wohnungsbewerbung!









