Beschreibung
Dieses geschickt geschnittene Apartment im 2. Obergeschoss eines Mehrfamilienhauses, das derzeit energetisch saniert und modernisiert wird, überzeugt mit heller und funktionaler Raumaufteilung.
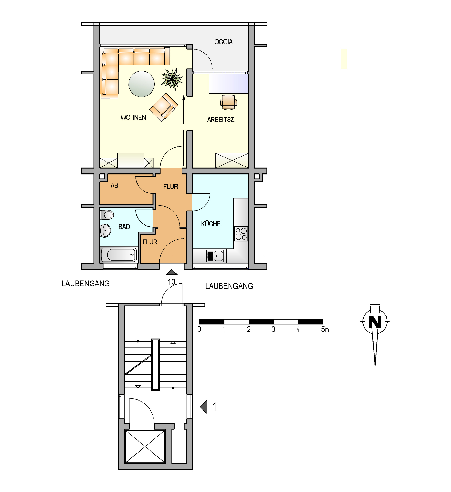
Der zentrale Flur führt zu allen Räumen. Das Badezimmer ist mit einer Badewanne ausgestattet, die Küche bietet Platz für eine kleine Sitzgelegenheit. Der Wohn- und Schlafbereich bietet Zugang zum Balkon, von dem aus Sie einen schönen Blick ins Grüne genießen und entspannt den Tag ausklingen lassen können. Dank der cleveren Aufteilung lässt sich der Schlafbereich bei Bedarf vom Wohnbereich abtrennen Ein großzügiger Abstellraum sorgt zusätzlich für praktischen Stauraum.
Ein Kellerraum gehört ebenfalls zur Wohnung.
Ausstattung
- 1 Zimmer
- Bad mit Badewanne
- Abstellraum
- Balkon
- isolierverglaste Kunststofffenster
- Vinyloberboden
- Fernwärme
- Rauchmelder
- Kellerraum
Lage
Der Eichendorffweg liegt in einer ruhigen Wohnlage aber ist dennoch zentral gelegen, sodass in der unmittelbaren Umgebung, ca. 5 min mit dem Auto, sich die A46 in Richtung Düsseldorf / Wuppertal befindet. Einkaufsmöglichkeiten für den täglichen Bedarf, Ärzte, Schulen und Kindergärten, sind ebenfalls in der Nähe und mit öffentlichen Verkehrsmitteln, als auch mit dem PKW in wenigen Minuten zu erreichen.
Sonstiges
Aktuell werden die Gebäude am Eichendorffweg 1 und 3 umfassend energetisch saniert und modernisiert. Die Arbeiten betreffen sowohl die äußere Gestaltung der Gebäude als auch die Wärmedämmung und weitere Maßnahmen zur Verbesserung der Energieeffizienz. Das Baugerüst bleibt bis zur Fertigstellung bestehen.
Die angegebenen Energiekennwerte beziehen sich auf den Zustand vor der Sanierung. Ein neuer Energieausweis wird nach Abschluss der Arbeiten erstellt.
Sollte Interesse an einer Besichtigung bestehen, bewerben Sie sich am besten über die Kontaktmöglichkeit. Im Anschluss bitten wir um vollständige Profilerstellung bei ImmoMio, um Ihre Bewerbung berücksichtigen zu können. Wir freuen uns auf Ihre Wohnungsbewerbung!





