Beschreibung
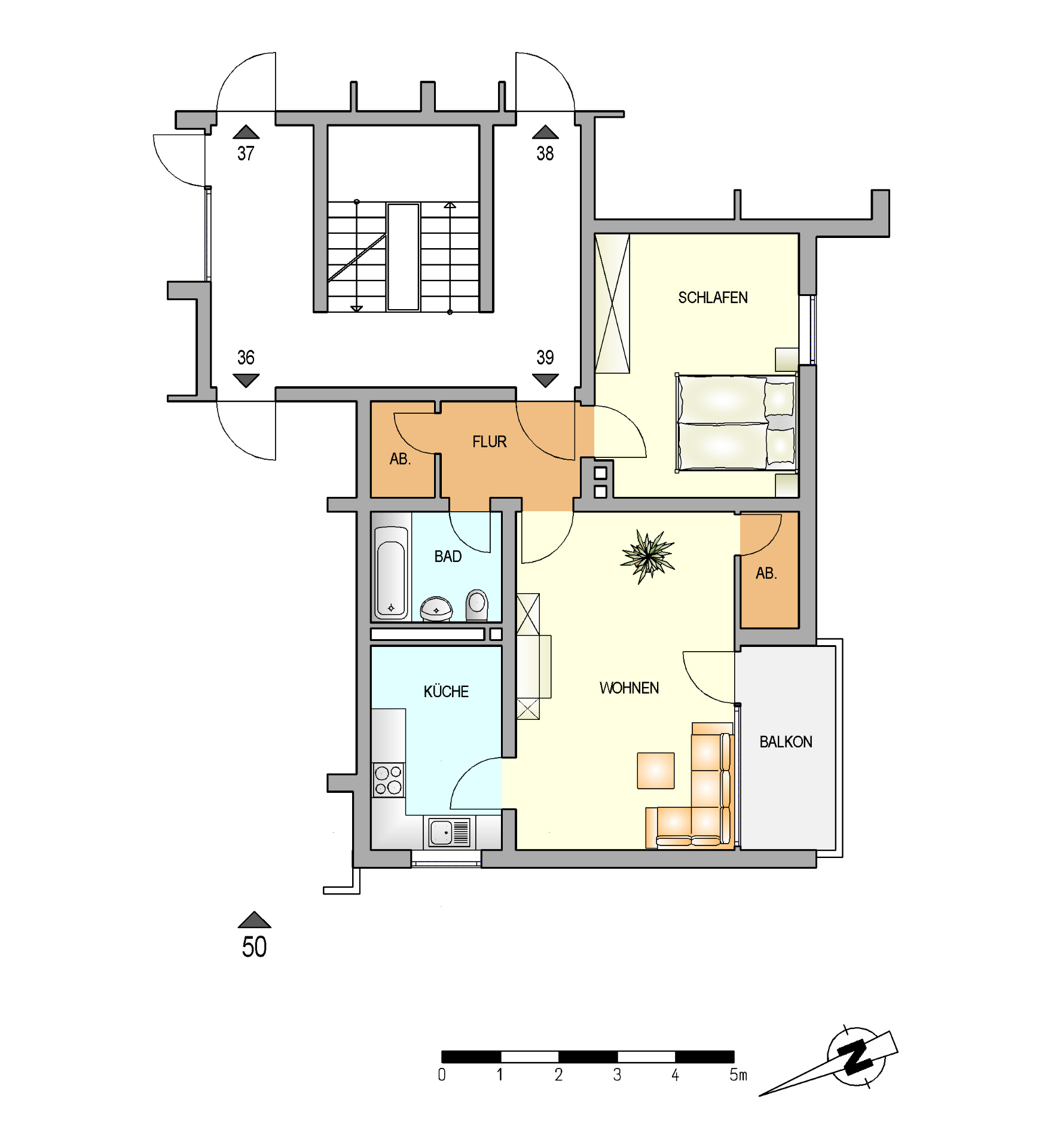
Die Wohnung befindet sich im 1. Obergeschoss eines Mehrfamilienhauses. Vom Flur erreichen Sie das Schlafzimmer, das innenliegende Bad und einen Abstellraum für Ihre Garderobe. Geradeaus geht es in das Wohnzimmer mit Zugang zum Balkon und einen weiteren Abstellraum für Habseligkeiten. Die Küche erreichen Sie über den Wohnraum. Diese bietet ausreichend Platz für eine Einbauküche.
Ein Mieterkeller wird Ihnen zusätzlich zur Verfügung gestellt.
Ausstattung
- 2 Zimmer
- Badezimmer mit Badewanne
- 2 Abstellräume
- Rauchmelder
- Mieterkeller
Lage
Die Wohnung befindet sich im schönen Stadtteil Mixsiepen. Mit wenig Verkehr und vielen Grünanlagen lässt es sich gut abschalten und erholen.
Eine Bushaltestelle mit Verbindungen ins Zentrum ist fußläufig zu erreichen.
Sonstiges
Eine Anmietung der Wohnung ist ab dem 01.02.2025 möglich!
Sollte Interesse an einer Besichtigung bestehen, bewerben Sie sich am besten über die Kontaktmöglichkeit. Im Anschluss bitten wir um vollständige Profilerstellung bei Immomio, um Ihre Bewerbung berücksichtigen zu können.
Wir freuen uns auf Ihre Wohnungsbewerbung!



