Beschreibung
Diese tolle Wohnung befindet sich im fünften Obergeschoss und ist mit dem Aufzug erreichbar.
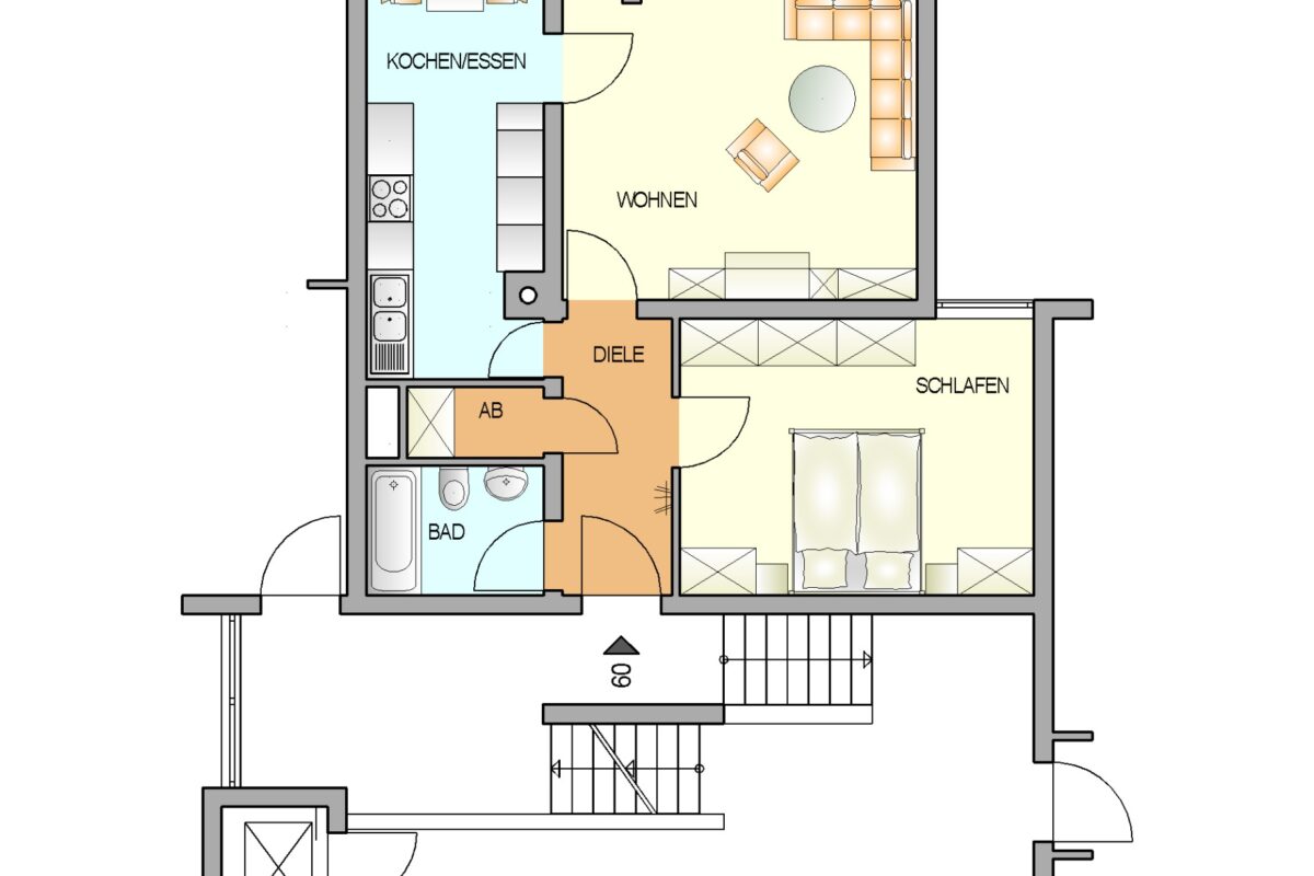
Wenn Sie den Flur betreten finden Sie auf der linken Seite einen kleinen Abstellraum und das moderne Badezimmer mit Wanne. Zur rechten Seite vom Eingang geht es in den lichtdurchfluteten Schlafraum. Gehen Sie von dem Schlafraum ein paar Meter weiter ins Wohnungsinnere, stehen Sie im geräumigen Wohnraum mit Zugang zum Balkon. Vom Balkon können Sie in die schöne grüne Landschaft blicken. Zuzüglich kann man vom Wohnzimmer in die Küche gelangen.
Die Wohnung ist mit einer sehr angenehmen Aufteilung perfekt für Singles oder auch Paare.
In der Wohnung werden folgende Arbeiten durchgeführt:
-Neuinstallation Elektronik
-Tapeten entfernen
-Decken tapezieren und streichen
- Türen streichen
- Heizkörper lackieren
- Bodenbelag entfernen
Die Wohnung wird ohne Oberboden und ohne Tapeten übergeben.
Ausstattung
-2 Zimmer
-Bad mit Badewanne
-Küche
-Balkon
-Abstellraum
-Rauchmelder
-Zentralheizung
-Kellerraum
Lage
Die Wohnanlage liegt an einem leichten Südhang in der Nähe der Panzertalsperre in landschaftlich schöner Lage. Umfangreiche Grünflächen zwischen den Häusern geben dem Objekt Ruhe und Geborgenheit.
Zu einem Ausflug ins Grüne laden die in der Nähe liegenden Waldgebiete ein. Die Immobilie ist hervorragend an den öffentlichen Nahverkehr angebunden. Innerhalb weniger Minuten erreichen Sie das Zentrum von Remscheid-Lennep mit vielfältigen Einkaufsmöglichkeiten. Eine gute und schnell zu erreichende Anbindung an die Autobahn A1. Somit sind auch Städte wie Köln, Dortmund oder auch Düsseldorf schnell erreichbar.
Sonstiges
Eine Anmietung dieser Wohnung ist zum 01.01.2026 möglich.
Sollte Interesse an einer Besichtigung bestehen, bewerben Sie sich am besten über die Kontaktmöglichkeit. Im Anschluss bitten wir um vollständige Profilerstellung bei Immomio, um Ihre Bewerbung berücksichtigen zu können.
Wir freuen uns auf Ihre Wohnungsbewerbung!









