Beschreibung
Diese tolle Wohnung befindet sich im 3. Obergeschoss in einem Mehrfamilienhaus in der Wohnanlage "Am Hölterhof" in Radevormwald.
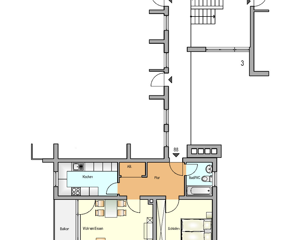
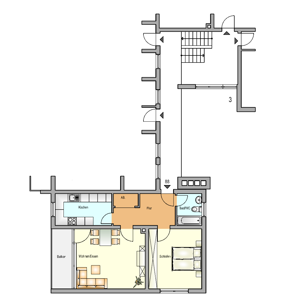
Beim betreten der Wohnung gelangen Sie in den Flur, von welchem alle Räume (Badezimmer, Schlafzimmer, Wohnzimmer und Küche) zu erreichen sind.
Den Balkon begehen Sie über das Wohnzimmer. Dieser ermöglicht einen tollen Blick ins Grüne.
Ein Kellerraum wird Ihnen auch zur Verfügung gestellt.
In der Wohnung wurden Anfang des Jahres folgende Maßnahmen durchgeführt:
- Teilerneuerung der Elektrik, E-Check
- Decken tapezieren und streichen
- Wände tapezierfähig herstellen (ohne Tapeten)
- Heizkörper lackieren
- Türen weiß streichen, Beschläge erneuern
- Ausgleichsspachtelmasse aufbringen (kein Bodenbelag)
Ausstattung
- 2 Zimmer
- 1 Schlafzimmer
- Bad mit Badewanne
- Balkon
- Gas-Zentralheizung
- Rauchmelder
- Keller
Lage
Die Wohnung befindet sich in einer sehr ruhigen Lage in Radevormwald. Einkaufsmöglichkeiten und Geschäfte des täglichen Bedarfs sowie Kindergärten und Schulen sind schnell erreichbar.
Sonstiges
Die Wohnung ist ab sofort bezugsfertig .
Sollte Interesse an einer Besichtigung bestehen, bewerben Sie sich am besten über die Kontaktmöglichkeit. Im Anschluss bitten wir um vollständige Profilerstellung bei Immomio, um Ihre Bewerbung berücksichtigen zu können.
Wir freuen uns auf Ihre Wohnungsbewerbung!







