Beschreibung
Sie suchen in einer ruhigen Umgebung eine gemütliche Wohnung?
Dann sind Sie hier genau richtig. Diese 2-Zimmer Wohnung stärkt sicherlich Ihr Wohlgefühl, da die ruhige Umgebung für eine tolle Atmosphäre sorgt!
Die Wohnung befindet sich im 1. Obergeschoss eines gepflegten Mehrfamilienhauses.
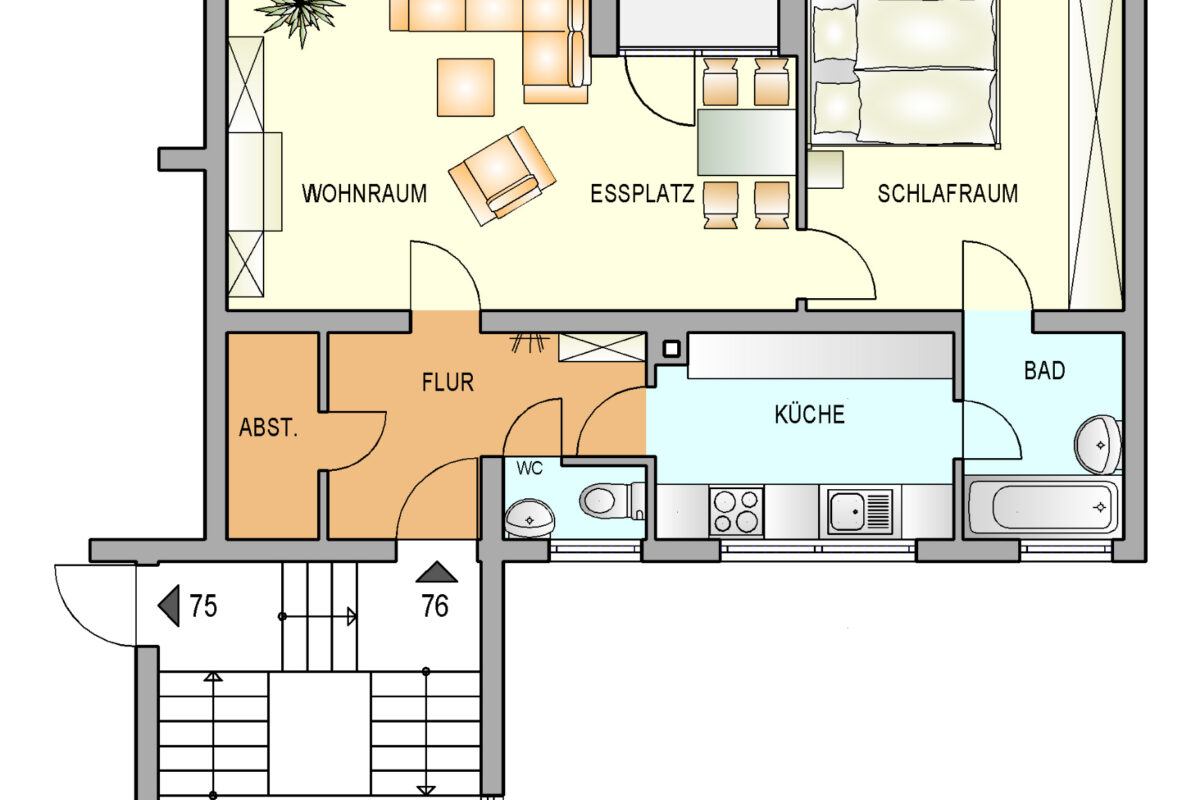
Beim betreten der Wohnung gelangen Sie in den Flur. Von dort aus ist der Abstellraum, das separate WC, das Wohnzimmer mit Platz für den Essbereich sowie die Küche zu erreichen. Durch die Küche und das Schlafzimmer gelangt man ins Badezimmer. Das Schlafzimmer ist über das Badezimmer und das Wohnzimmer zu begehen. Der große Balkon ist das Highlight der Wohnung. Dieser bietet ausreichend Platz für eine Sitzecke und lädt besonders bei gutem Wetter zur Entspannung ein.
Ein Kellerraum wird Ihnen auch zur Verfügung gestellt.
Die Wohnung ist aktuell noch vermietet, daher folgen Fotos zum späteren Zeitpunkt. Eine Anmietung dieser Wohnung ist zum 01.03.2026 möglich.
Ausstattung
- 2 Zimmer
- 1 Schlafzimmer
- Bad mit Badewanne
- separates WC
- Abstellraum
- Balkon
- Gas-Zentralheizung
- Keller
- Rauchmelder
Lage
Die Wohnanlage liegt an einem leichten Südhang in der Nähe der Panzertalsperre in landschaftlich schöner Lage. Umfangreiche Grünflächen zwischen den Häusern geben dem Objekt Ruhe und Geborgenheit.
Zu einem Ausflug ins Grüne laden die in der Nähe liegenden Waldgebiete ein. Die Immobilie ist hervorragend an den öffentlichen Nahverkehr angebunden. Innerhalb weniger Minuten erreichen Sie das Zentrum von Remscheid-Lennep mit vielfältigen Einkaufsmöglichkeiten. Eine gute und schnell zu erreichende Anbindung an die Autobahn A1. Somit sind auch Städte wie Köln, Dortmund oder auch Düsseldorf schnell erreichbar.
Sonstiges
Die Wohnung ist aktuell noch vermietet, daher folgen Fotos zum späteren Zeitpunkt. Eine Anmietung dieser Wohnung ist zum 01.03.2026 möglich.
Sollte Interesse an einer Besichtigung bestehen, bewerben Sie sich am besten über die Kontaktmöglichkeit. Im Anschluss bitten wir um vollständige Profilerstellung bei Immomio, um Ihre Bewerbung berücksichtigen zu können.
Wir freuen uns auf Ihre Wohnungsbewerbung!




