Beschreibung
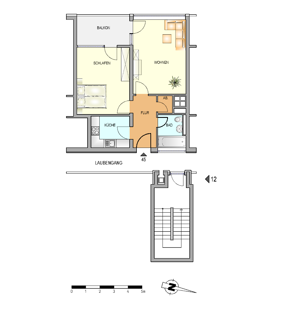
Diese schöne 2-Zimmer-Wohnung befindet sich im 3. Obergeschoss eines Mehrfamilienhauses.
Durch die Haustür betreten finden Sie links vom Flur die Küche und das Schlafzimmer. Rechter Hand befindet sich das Badezimmer, welches mit einer Badewanne ausgestattet ist. Geradeaus gelangen Sie in das helle Wohnzimmer mit Zugang zum Balkon. Praktischerweise gibt es auch einen kleinen Abstellraum für Ihre Haushaltsutensilien.
Ein Mieterkeller wird Ihnen ebenfalls zur Verfügung gestellt.
Ausstattung
- Balkon
- Bad mit Wanne und Tageslichtfenster
- Rauchmelder
- Haushaltskeller
Lage
Das Haus steht in zentraler Lage des kleinen beschaulichen Städtchens Burscheid. In unmittelbarer Nähe finden Sie Einkaufsmöglichkeiten zur Deckung des täglichen Bedarfs, den Wochenmarkt, Ärzte, Banken, Sparkasse uvm. Die Autobahnanbindung an die A1 Köln-Dortmund sowie die Anbindung an die Bundesstraße B 51 Köln - Wuppertal ist ideal. Im öffentlichen Personennahverkehr fährt die Buslinie 260 von Remscheid nach Köln durch Burscheid tagsüber im 30 - Minuten -Takt. Die Busverbindung nach Leverkusen ist ebenfalls günstig. Kulturell hat Burscheid Einiges zu bieten. Besonders herausragend ist der Musikbereich. Sportbegeisterte können sich einem der zahlreichen Vereine anschließen. Das Bergische Land liegt vor der Haustüre und lädt ein zu ausgiebigen Wanderungen, Mountainbiketouren oder Ausflügen aller Art.
Sonstiges
Eine Anmietung ist ab dem 01.02.2026 möglich!
Sollte Interesse an einer Besichtigung bestehen, bewerben Sie sich am besten über die Kontaktmöglichkeit. Im Anschluss bitten wir um vollständige Profilerstellung bei Immomio, um Ihre Bewerbung berücksichtigen zu können.
Wir freuen uns auf Ihre Wohnungsbewerbung!



