Beschreibung
Sie möchten die Stadtnähe genießen, aber dennoch in ruhiger Lage wohnen?
Diese gut geschnittene 3-Zimmer-Wohnung in Radevormwald, bietet Singles, kleinen Familien als auch Paaren ausreichend Platz. Die Wohnung befindet sich im 1 Obergeschoss des Hauses und bietet vom Balkon eine schöne Aussicht ins Grüne.
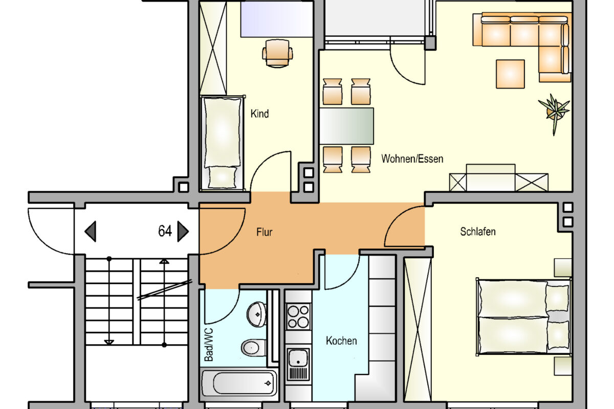
Bei Eintritt in die Wohnung gelangen Sie in den zentralen Flur, von dem alle Räume zu erreichen sind. Links gelangen Sie in das Kinderzimmer. Vorne rechts ist das vor wenigen Jahren modernisierte Bad mit Wanne und Fenster. Direkt dahinter die Kochküche. Ein Essplatz befindet sich direkt links vor dem Balkon. Den Wohnbereich erreichen Sie über den Essbereich. Das Eltern-Schlafzimmer liegt geradeaus am hinteren Ende der Wohnung.
In der Wohnung finden noch Modernisierungsarbeiten statt. Die elektrische Installation wir den neuen Anforderungen angepasst. Der vorh. Bodenbelag entfernt und für einen mietereigenen Belag vorbereitet. Die Decken , das Holzwerk, Heizkörper werden frisch gestrichen bzw. lackiert an den Nachmieter übergeben. Die Wände werden tapezierfertig für einen mietereigenen Wandbelag vorbereitet.
Ausstattung
- energetisch saniert
- Anschluss ans Breitbandkabelnetz
- isolierverglaste Kunststofffenster
- Vinylboden
- Haushaltskeller
- Zentralheizung
- Rauchmelder
Lage
Die Wohnung befindet sich in einer sehr ruhigen Lage in Radevormwald. Einkaufsmöglichkeiten und Geschäfte des täglichen Bedarfs sowie Kindergärten und Schulen sind schnell erreichbar.
Sonstiges
Parkplätze sind in ausreichender Anzahl vorhanden. Die Anmietung eines Garagen- bzw. Außenstellplatzes ist bei Verfügbarkeit möglich.
Sollte Interesse an einer Besichtigung bestehen, kontaktieren Sie uns am besten über die E-Mail Kontaktmöglichkeit von unserem Bewerberportal "ImmoMio".
Wir prüfen dann Ihre Bewerbung und setzten uns mit ausgewählten Bewerbern zwecks Terminabsprache in Verbindung.
Die Wohnung ist momentan noch bewohnt.
Gerne stehen wir Ihnen für alle Ihre Fragen, Wünsche und Anregungen rund um diese Wohnung zur Verfügung.








