Beschreibung
Sie möchten in ruhiger Lage wohnen?
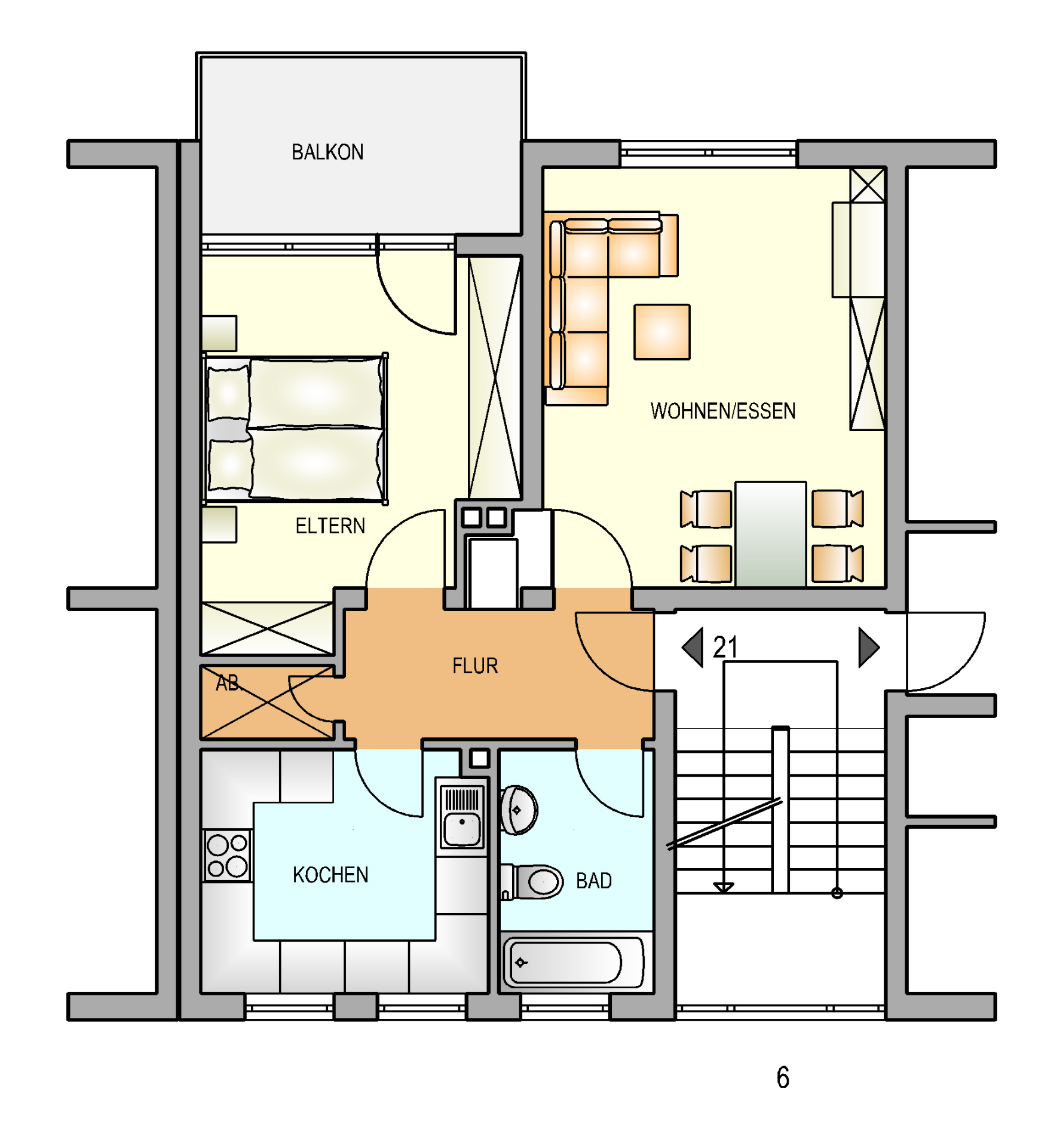
Hier werden Sie gerne leben und zu Hause sein - die hier angebotene Wohnung befindet sich im Hochparterre eines kleinen Mehrfamilienhauses einer gepflegten Wohnanlage in Hilgen.
Durch die Haustür betreten finden Sie rechter Hand vom Flur das helle Wohnzimmer und das Schlafzimmer mit einem Balkon. Linker Hand befindet sich die Küche und das Badezimmer, welches mit einer Badewanne und einem Tageslichtfenster ausgestattet ist. Ein Kellerraum wird Ihnen ebenfalls zur Verfügung gestellt.
Zur Zeit finden folgende Arbeiten in der Wohnung statt-
- Tapeten entfernen
- Neuinstallation der Elektrik
- Türen und Heizkörper weiß streichen
- Laminatboden verlegen
- Fliesenspiegel entfernen
Aufgrund der Sanierungsarbeiten werden Fotos zu einem späteren Zeitpunkt hochgeladen.
Ausstattung
- Gas-Zentralheizung
- isolierverglaste Kunststoff-Fenster
- Bad mit Wanne und Fenster
- Laminatboden
- Balkon
- Rauchmelder
- Keller
Lage
Das Haus steht in zentraler Lage des kleinen beschaulichen Städtchens Burscheid. In unmittelbarer Nähe finden Sie Einkaufsmöglichkeiten zur Deckung des täglichen Bedarfs, den Wochenmarkt, Ärzte, Banken, Sparkasse uvm. Die Autobahnanbindung an die A1 Köln-Dortmund sowie die Anbindung an die Bundesstraße B 51 Köln - Wuppertal ist ideal. Im öffentlichen Personennahverkehr fährt die Buslinie 260 von Remscheid nach Köln durch Burscheid tagsüber im 30 - Minuten -Takt. Die Busverbindung nach Leverkusen ist ebenfalls günstig. Kulturell hat Burscheid Einiges zu bieten. Besonders herausragend ist der Musikbereich. Sportbegeisterte können sich einem der zahlreichen Vereine anschließen. Das Bergische Land liegt vor der Haustüre und lädt ein zu ausgiebigen Wanderungen, Mountainbiketouren oder Ausflügen aller Art.
Sonstiges
Sollte Interesse an einer Besichtigung bestehen, bewerben Sie sich am besten über die Kontaktmöglichkeit. Im Anschluss bitten wir um vollständige Profilerstellung bei Immomio, um Ihre Bewerbung berücksichtigen zu können.
Wir freuen uns auf Ihre Wohnungsbewerbung!




