Beschreibung
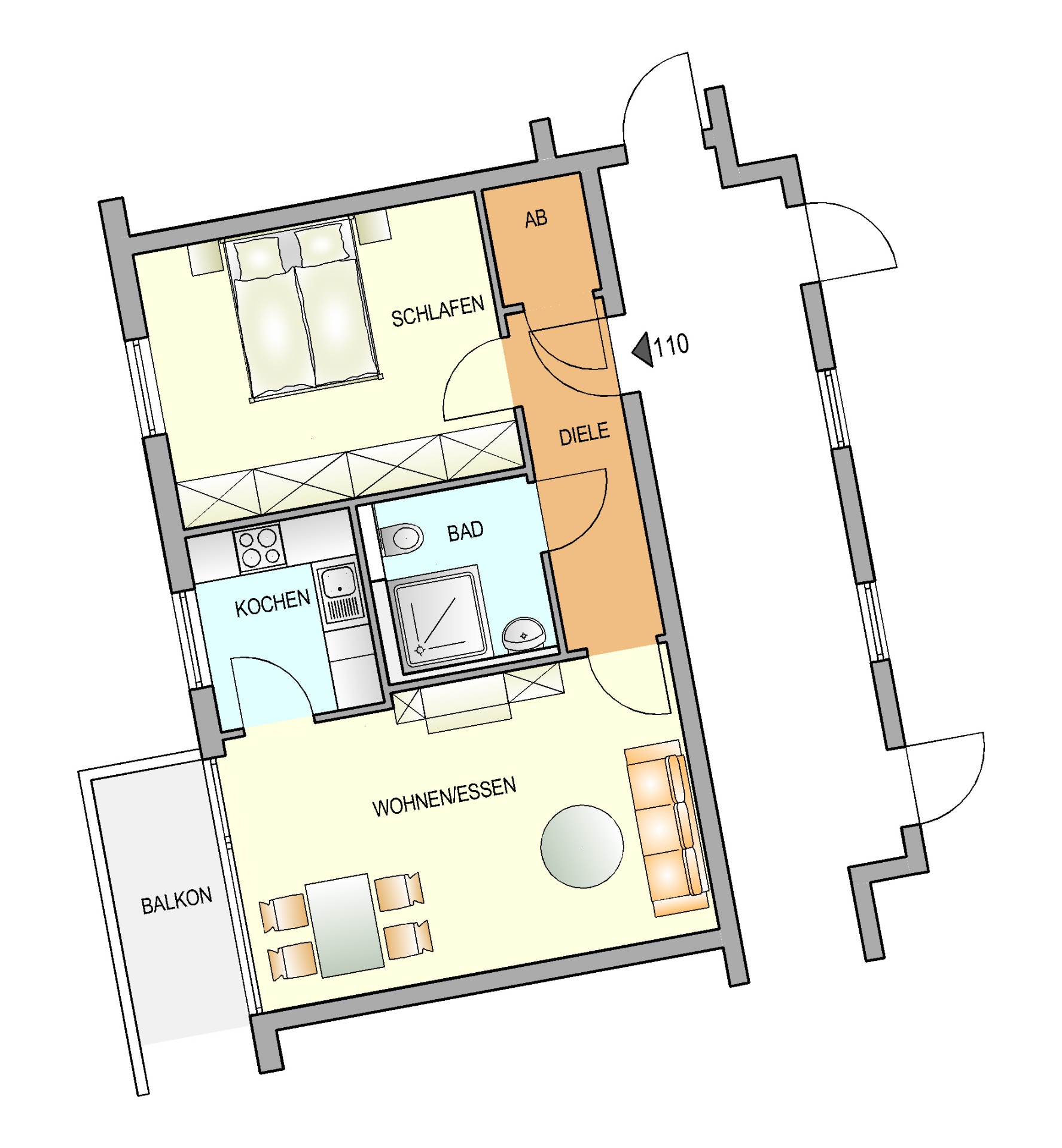
Der Bismarckhof ist eine Seniorenwohnanlage ab dem Alter 60. Die Wohnung befindet sich im 6. OG des Hauses mit Blick zur Greulingstraße. Diese gemütliche Wohnung verfügt über ein großes Wohnzimmer mit Zugang zum Balkon, einem Schlafzimmer, sowie einem barrierefreien Bad, einer Küche mit Fenster und einem geräumigen Abstellraum.
Ebenso muss ein Betreuungsvertrag mit der Diakonie abgeschlossen werden (Einzelperson: 40,80€/ Paar: 61,20€€). Ohne diesen Vertrag ist leider kein Bezug des Hauses möglich. Ein Stellplatz in der Tiefgarage kann für 41€/Monat zusätzlich angemietet werden.
Möbel und die Einbauküche können nach Absprache übernommen werden!
Ausstattung
- Personenaufzug
- Balkon
- Haushaltskeller
- Anschluss an Breitbandkabelnetz
- Gas-Zentralheizung
- isolierverglaste Kunststofffenster
- Rauchmelder
Lage
In der unmittelbaren Umgebung befinden sich Einkaufsmöglichkeiten für den täglichen Bedarf sowie mehrere Ärzte. Die Innenstadt ist sowohl mit öffentlichen Verkehrsmitteln als auch mit dem PKW in wenigen Minuten zu erreichen.
Sonstiges
Bei Bezug muss ein Betreuungsvertrag mit der Diakonie abgeschlossen werden (Einzelperson: 40,80€/Paar: 61,20€). Ohne diesen Vertrag ist leider kein Bezug des Hauses möglich.
Wir freuen uns auf Ihre Kontaktaufnahme!
Ein Stellplatz in der Tiefgarage kann für 41€/Monat zusätzlich angemietet werden.
Möbel können nach Absprache übernommen werden!










