Beschreibung
Die inserierte Wohnung befindet im Dachgeschoss eines Mehrfamilienhauses.
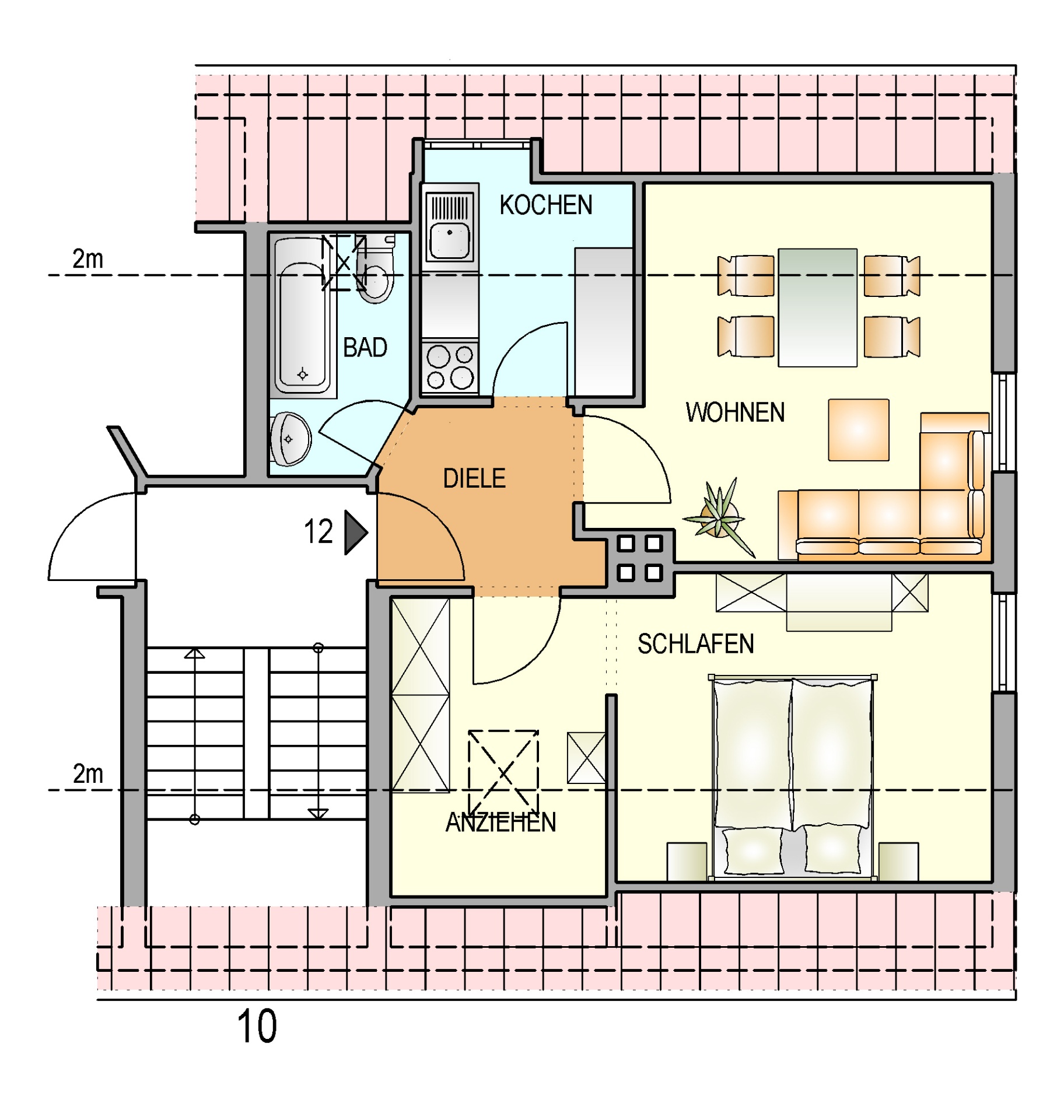
Beim betreten der Wohnung gelangen Sie in den Flur und können von hier aus alle Räume begehen. Links befindet sich das Bad mit einfallendem Tageslicht, ausgestattet mit einer Badewanne. Direkt nebenan liegt die Küche und gerade aus befindet sich das einladende Wohnzimmer. Auf der Rechten Seite ist das Schlafzimmer mit durchdachter Raumaufteilung für mehr Komfort. Eine Trennwand schafft ein separates Ankleidezimmer und kreiert eine gemütliche Atmosphäre.
Für zusätzlichen Stauraum wird Ihnen ebenfalls ein Mieterkeller zur Verfügung gestellt.
In der Wohnung werden noch folgende Arbeiten für Sie durchgeführt:
- Teilerneuerung der Elektrik
- Wände tapezierfähig herstellen (Wände werden ohne Tapeten übergeben!)
- Heizkörper lackieren
- Türen und Zargen streichen
- Boden verlegen
Ausstattung
- 2 Zimmer
- Bad mit Tageslichtfenster und Badewanne
- Gas-Etagenheizung
- Rauchmelder
- Keller
Lage
Das Haus befindet sich am schönen Kremenholl. Die Umgebung lässt viel ins Grüne blicken, es herrscht wenig Verkehr und für Freizeitaktivitäten befindet sich ein Wald mit weitläufigen Wanderwegen in der Nähe. Eine Bushaltestelle mit Verbindungen ins Zentrum ist auch nur wenige Gehminuten entfernt.
Sonstiges
Eine Anmietung ist ab dem 01.03.2026 möglich!
Sollte Interesse an einer Besichtigung bestehen, bewerben Sie sich am besten über die Kontaktmöglichkeit. Im Anschluss bitten wir um vollständige Profilerstellung bei Immomio, um Ihre Bewerbung berücksichtigen zu können. Wir freuen uns auf Ihre Wohnungsbewerbung!




