Beschreibung
Die Wohnung liegt im erhöhten Erdgeschoss eines Mehrfamilienhauses und verfügt über eine eigene Terrasse.
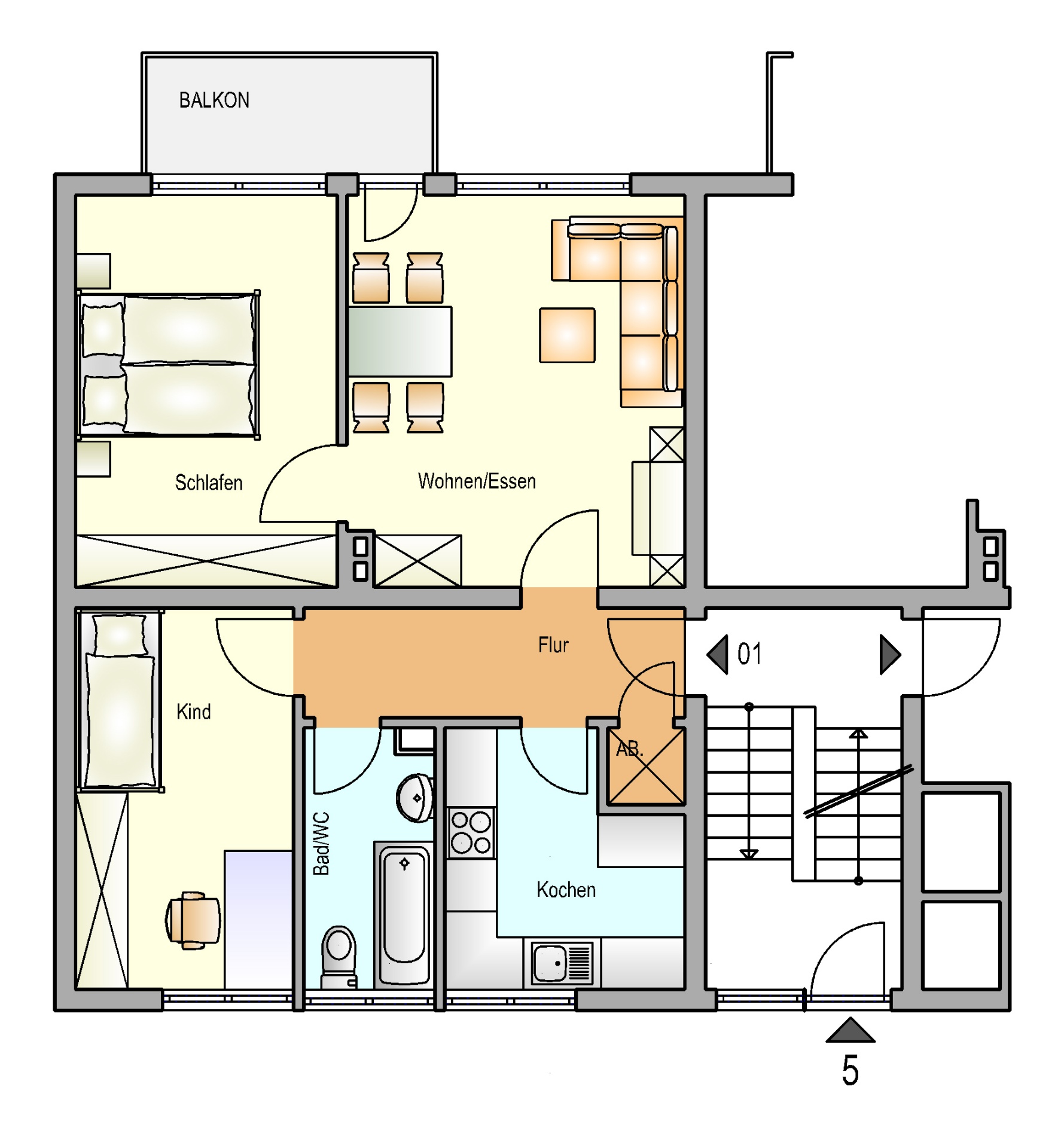
Vom Eingangsbereich aus erreichen Sie auf der linken Seite die kompakte Küche sowie das Badezimmer mit Fenster und Badewanne. Zusätzlich steht ein praktischer Abstellraum zur Verfügung. Geradeaus gelangen Sie in ein weiteres Zimmer, das sich ideal als Kinder- oder Arbeitszimmer eignet.
Rechts befindet sich der Wohnbereich mit direktem Zugang zur Terrasse. Vom Wohnzimmer aus gelangen Sie außerdem in das Schlafzimmer.
Ein Anschluss für die Waschmaschine befindet sich in der Waschküche im Kellergeschoss. Ergänzend stehen ein Trockenraum sowie ein eigener Kellerraum zur Verfügung.
Folgende Sanierungsarbeiten finden derzeit statt:
- Elektroneuinstallation
- Fliesenspiegel entfernen (kein neuer vorhanden)
- Decken tapezieren und weiß streichen
- Wände tapezierfähig herstellen
- Türen und Zagen weiß streichen
- Laminat verlegen
- Grundreinigung
Die Wohnung wird ohne Wandtapeten übergeben.
Ausstattung
- 3 Zimmer
- 2 Schlafzimmer
- Abstellraum
- Gas -Etagenheizung
- Bad mit Badewanne
- Gas-Etagenheizung
- Keller
- Rauchmelder
- isolierverglaste Kunststofffenster
- Laminat
- Terrasse
Lage
Eine Straße im Stadtteil West, die sich - je nach Abschnitt unterschiedlich gestaltet.
In beide Richtungen befahrbar. Die Höchstgeschwindigkeit beträgt 30 km/h.
Diese Wohnung bietet eine sehr gute Anbindung zum ÖPNV und diverse Einkaufsmöglichkeiten des täglichen Bedarfs lassen sich fußläufig erreichen.
Sonstiges
Sollte Interesse an einer Besichtigung bestehen, bewerben Sie sich am besten über die Kontaktmöglichkeit. Im Anschluss bitten wir um vollständige Profilerstellung bei ImmoMio (über unsere GEWAG Homepage), um Ihre Bewerbung berücksichtigen zu können. Wir freuen uns auf Ihre Wohnungsbewerbung!




