Beschreibung
Dieses charmante Einfamilienhaus bietet auf drei Etagen ein durchdachtes Raumkonzept - ideal für Familien. Im Erdgeschoss befinden sich ein großzügiger Wohn- und Essbereich, eine separate Küche (im Grundriss als Kinderzimmer 1 gekennzeichnet), ein modernes Bad mit Dusche sowie ein separates WC. Vom Wohnzimmer gelangen Sie auf die schicke Terrasse. Ein praktischer Abstellraum und ein Hauswirtschaftsraum runden das Raumangebot auf dieser Ebene ab.
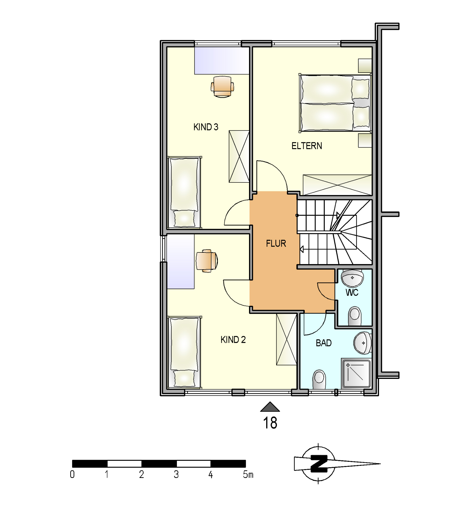
Das Obergeschoss überzeugt mit einem Elternschlafzimmer und zwei weiteren Kinderzimmern, die viel Platz zum Spielen und Lernen bieten. Ergänzt wird die Etage durch ein weiteres Badezimmer mit einer Badewanne sowie ein separates WC.
Das Dachgeschoss bietet zwei weitere gemütliche Kinderzimmer sowie einen zusätzlichen Abstellraum – ideal für größere Familien oder für die Nutzung als Gäste- bzw. Hobbybereich.
Ausstattung
- Terrasse und Garten
- Gas-Etagenheizung
- 5 Schlafzimmer
- 2 Bäder
- Abstellraum
- Isolierverglaste Kunststofffenster
- Rauchmelder
Lage
Die Wohnung liegt sehr zentral im schönen Stadtteil Remscheid-Lennep. Von hier aus sind Sie in wenigen Gehminuten bei diversen Einkaufsmöglichkeiten und mit dem Auto schnell an der Autobahn.
Sonstiges
Sollte Interesse an einer Besichtigung bestehen, bewerben Sie sich am besten über die Kontaktmöglichkeit. Im Anschluss bitten wir um vollständige Profilerstellung bei Immomio, um Ihre Bewerbung berücksichtigen zu können.
Wir freuen uns auf Ihre Wohnungsbewerbung!