Beschreibung
Für die Anmietung dieser Wohnung ist ein Wohnberechtigungsschein für 2 Personen oder 65qm erforderlich.
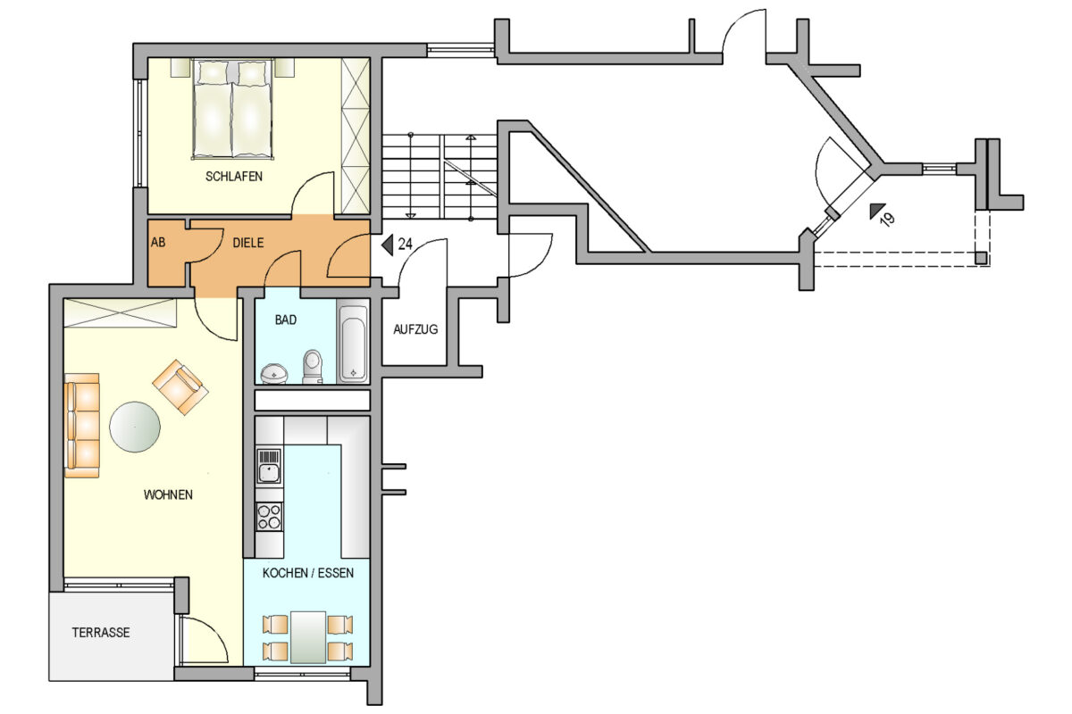
Diese schöne 2-Zimmer-Wohnung befindet sich im Erdgeschoss eines gepflegten Mehrfamilienhauses in der Brunnengasse in Remscheid.
Beim Betreten der Wohnung gelangen Sie in den Flur. Von dort aus ist das Schlafzimmer, das Badezimmer mit Dusche und das geräumige Wohnzimmer zu begehen. Die Küche erreichen Sie über das lichtdurchflutete Wohnzimmer. Sie ist super geschnitten und bietet Platz für eine gemütliche Essecke.
Das Highlight der Wohnung ist die großzügige Terrasse. Zudem ist der Abstellraum super praktisch um Vorräte und Haushaltsgegenstände abzustellen.
Ein Keller wird Ihnen ebenfalls zur Verfügung gestellt.
In der Wohnung werden die Wände, Decken und Heizkörper weiß gestrichen.
Ausstattung
- 2 Zimmer
- Bad mit Dusche
- Abstellraum
- Gas-Etagenheizung
- Keller
- Rauchmelder
-Terrasse
Lage
Die Immobilie finden Sie in der Remscheider Innenstadt. In Laufnähe der Immobilie sind mehrere Buslinien vorhanden. Überregionale Ziele sind durch die nahe verkehrende Bahnlinie S7 gut erreichbar. In direkter Umgebung finden Sie Ärzte, Restaurants, Cafés, Bäckereien und zwei Einkaufszentren vor. Außerdem gibt es ein paar Modegeschäfte, Bars, Fitnessstudios, eine Grün- und Parkanlage und eine Buchhandlung.
Sonstiges
Für die Anmietung dieser Wohnung wird ein gültiger Wohnberechtigungsschein (65m² oder 2-Zimmer) benötigt. Der Wohnberechtigungsschein ist von der Personenanzahl sowie dem Einkommen abhängig. Sollten Sie unsicher sein, ob Sie Anspruch auf einen Wohnberechtigungsschein haben, können Sie dies beim Wohnungsamt erfragen.
Sollte Interesse an einer Besichtigung bestehen, bewerben Sie sich am besten über die Kontaktmöglichkeit. Im Anschluss bitten wir um vollständige Profilerstellung bei Immomio, um Ihre Bewerbung berücksichtigen zu können.
Wir freuen uns auf Ihre Wohnungsbewerbung!








